フェニックス西参道タワー
初台徒歩5分 シアタールーム ジム完備マンション ペットOK
城西エリアの高級賃貸・ファミリー物件は実績のある当社へ、家賃交渉・入居審査もお任せ、ご案内の際は現地待ち合わせも可能、ネット等で気になる物件もまとめてご案内致します、仲手無料・未公開物件多数ございます
| 所在地 | 東京都渋谷区代々木4 |
|---|---|
| 交通 | 京王線初台駅 徒歩5分 |
| 築年月 | 2008/08 | 新築/中古 | |
|---|---|---|---|
| 面積 | 76.75m² | 計測方式 | |
| バルコニー | m² | 向き | |
| 建物階数 | 部屋階数 | 16階 | |
| 部屋/区画番号 | 総戸/区画数 | ||
| 建物構造 | |||
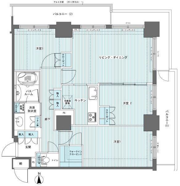
| 間取内容 | |||
| 駐車場 | 取引態様 | ||
| 引渡/入居時期 | 現況 | ||
| 周辺環境 | |||
| 設備・条件 | |||
| 物件番号 | /sc_shibuya/jnc_000024759436/ | ||
※物件掲載内容と現況に相違がある場合は現況を優先と致します。




