渋谷区本町1丁目 中古戸建て
| 所在地 |
東京都渋谷区本町1
|
| 交通 |
京王線初台駅 徒歩7分 |
| 築年月 |
2000/10 |
新築/中古 |
中古 |
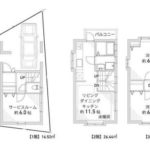
| 面積 |
69.4m² |
計測方式 |
|
| バルコニー |
m² |
向き |
|
| 建物階数 |
地上3階 |
部屋階数 |
階 |
| 部屋/区画番号 |
|
総戸/区画数 |
|
| 建物構造 |
木造 |
| 間取内容 |
|
| 駐車場 |
|
取引態様 |
|
| 引渡/入居時期 |
|
現況 |
|
| 土地面積 |
44.07m² |
土地面積計測方式 |
|
| 周辺環境 |
|
| 設備・条件 |
|
| 物件番号 |
/sc_shibuya/nc_87916603/ |
※物件掲載内容と現況に相違がある場合は現況を優先と致します。