クオリア恵比寿ウエスト
平成15年3年築、東急不動産(株)旧分譲 ~クオリアシリーズ~
「恵比寿」駅徒歩2分の好立地マンション
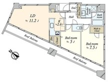
■東南・南西角部屋のため日当たり・通風・眺望良好!
■ルーフバルコニー面積:28.11m2≪無償≫
■バルコニー前面に高い建物がないため、開放感があります!
■全居室採光が取れるため、大変明るい室内設計!
■1418サイズのゆったりバスルーム
■LDには足元から温かい床暖房
■大規模修繕工事実施済~平成28年1月末完了~
《鉄部塗装、防水工事》
■エントランスオートロック
■24時間セキュリティシステム
■ホテルライクな内廊下設計
■宅配ボックス有
■5路線2駅利用可能
*JR山手線・湘南新宿ライン・埼京線「恵比寿」駅徒歩2分
*東京メトロ日比谷線「恵比寿」駅徒歩1分
*東急東横線「代官山」駅徒歩8分
| 所在地 | 東京都渋谷区恵比寿西1 |
|---|---|
| 交通 | JR山手線恵比寿駅 徒歩1分 |
| 築年月 | 2003/03 | 新築/中古 | 中古 |
|---|---|---|---|
| 面積 | 65.19m² | 計測方式 | |
| バルコニー | m² | 向き | |
| 建物階数 | 部屋階数 | 11階 | |
| 部屋/区画番号 | 総戸/区画数 | ||
| 建物構造 | RC | ||
| 間取内容 | |||
| 駐車場 | 取引態様 | ||
| 引渡/入居時期 | 現況 | ||
| 周辺環境 | |||
| 設備・条件 | |||
| 物件番号 | /sc_shibuya/nc_86467693/ | ||
※物件掲載内容と現況に相違がある場合は現況を優先と致します。




